The Yobi
Live in a single-occupancy micro-apartment on the Seattle University campus when you choose to live in The Yobi on the corner of 13th and Marion.
The Yobi is on the corner of 13th and Marion (behind the Advancement & Alumni building) offers you five floors of fully furnished single rooms with microwaves, refrigerators, and private bathrooms. The Yobi is a smaller community, made up of 45 single “micro-apartment” style housing options. You are assigned to your own single room. There are no shared occupancy options at Yobi.
Room Types
Micro-apartment style singles with loft options.
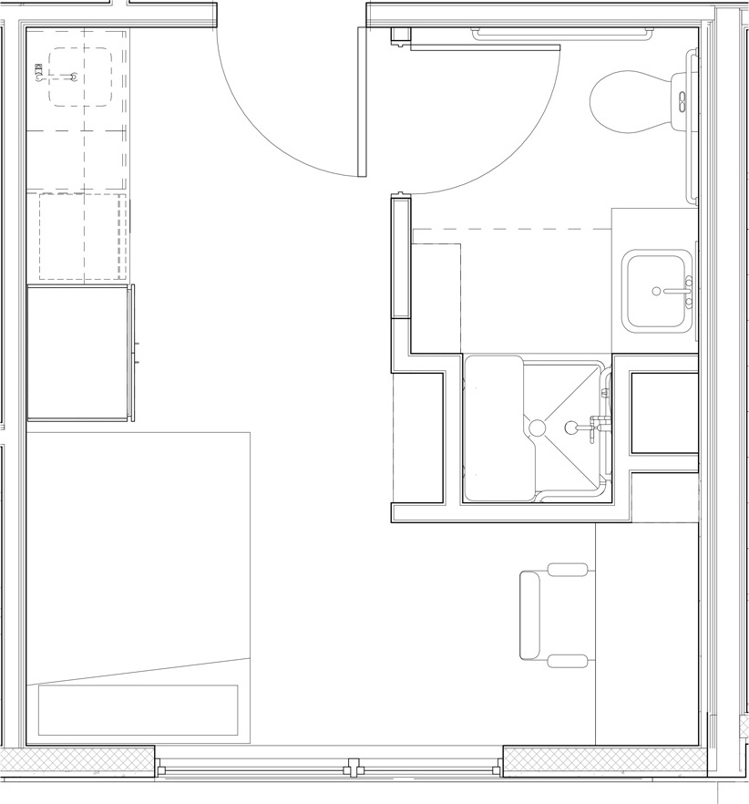
1 person room. Ground floor spaces with small variations in size. These spaces come with a shower and wide halls. All of these units are ADA accessible.
Size: 213–219 square feet
Furnishings included:
- Bed and mattress
- Desk and chair
- Wardrobe
- Shelving and storage
- Mini kitchen with small microwave and small refrigerator
- Private bathrooms
- Internet
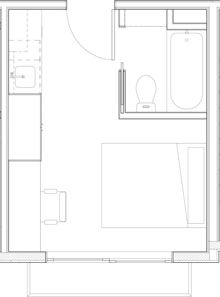
1 person room. B Type units feature huge corner windows, an entry nook and ample, creative storage. These spaces have big bathrooms with a tub. Loft units available.*
Size: 184–288 square feet
Furnishings included:
- Bed and mattress
- Desk and chair
- Wardrobe
- Shelving and storage
- Mini kitchen with small microwave and small refrigerator
- Private bathrooms
- Internet
*Loft rooms have the same layout, with a small storage loft above accessible by staircase. These rooms are only located on the 4th floor.
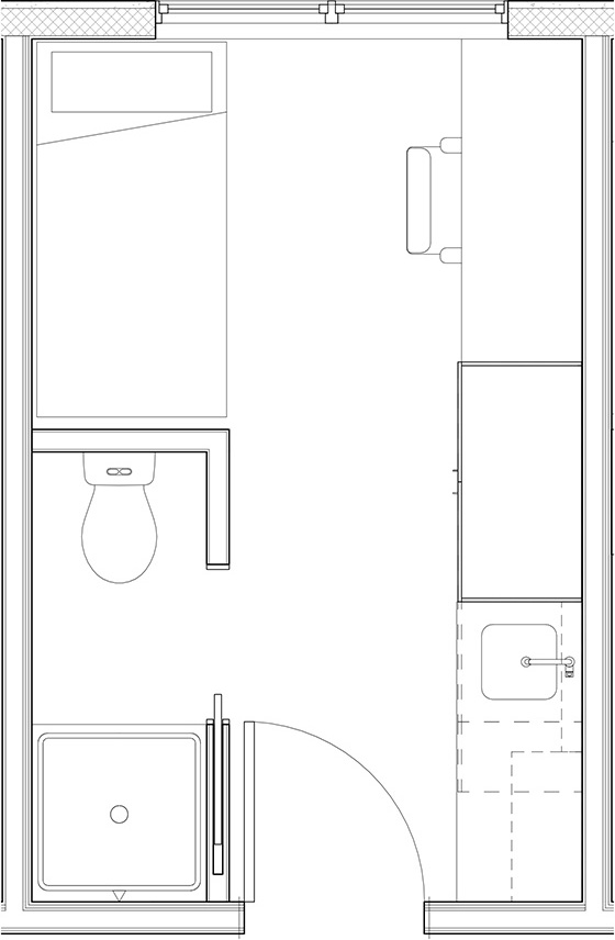
1 person room. These spaces boast huge, north-facing windows. These units are compact and ultra-efficient. Loft units available.*
Size: 147–163 square feet
Furnishings included:
- Bed and mattress
- Desk and chair
- Wardrobe
- Shelving and storage
- Mini kitchen with small microwave and small refrigerator
- Private bathrooms
- Internet
*Loft rooms have the same layout, with a small storage loft above accessible by staircase. These rooms are only located on the 4th floor.
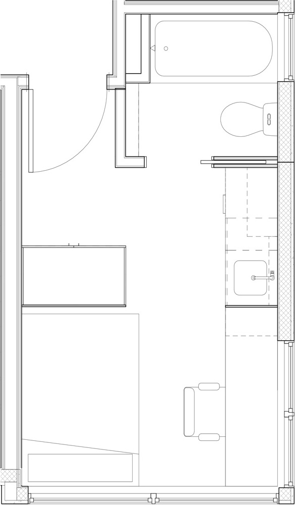
1 person room. D Type units have south-facing decklettes with floor-to-ceiling sliding glass doors and ample storage. Loft units available.*
Size: 197–288 square feet
Furnishings included:
- Bed and mattress
- Desk and chair
- Wardrobe
- Shelving and storage
- Mini kitchen with small microwave and small refrigerator
- Private bathrooms
- Internet
*Loft rooms have the same layout, with a small storage loft above accessible by staircase. These rooms are only located on the 4th floor.
Room Rates
Residence Hall Housing Rates
Amenities and Services
- Wireless Internet Access
- Larger communal kitchen on each floor. Each resident is assigned a cabinet for pantry. Sophomore students are still required to have the Residential Meal Plan, at minimum, if they wish to live in Yobi.
- Large, spacious lounge area and a smaller, separate game room with a TV
- Outdoor patio area in the back of the building
- On-site laundry facility
- Games and recreational equipment checkout services through Xavier Hall's front desk
- Vacuums and carts available at Xavier Hall's front desk
- Room lockout assistance through Xavier Hall's front desk
- Mail and package notifications through Xavier Hall
- Lost and found services through Xavier Hall's front desk
- Utilities included: electricity, heat, water, sewer, compost, recycling and trash
Contact Us
Yobi Apartments
(physical address)
1219 East Marion Street
Seattle, WA 98122
Yobi residents check in and pick up packages at Xavier Front Desk
1110 E. Spring Street
Seattle, WA 98122
206-296-6320
XavierFrontDesk@seattleu.edu
Xavier Front Desk hours
Winter Quarter Desk Hours
January 5 to March 22 (regular hours start)
Monday - Friday: 9AM - 10PM
Saturday, Sunday, and holidays: 11AM - 10PM
Spring Break
March 23 - March 26
Monday - Thursday: 10AM - 6PM
Spring Quarter Desk Hours
March 27 - March 29
Friday - Sunday 9AM - 10PM
Saturday, Sunday, and holidays: 11AM - 10PM
March 30 - June 10
Monday - Friday: 9AM - 10PM
Saturday, Sunday, and holidays: 11AM - 10PM
June 11 and June 12
Thursday and Friday: 8AM - 10PM
June 13
Saturday: 8AM - 9PM
June 14 - June 16
Sunday - Tuesday: 9AM - 9PM
Useful Links
See More Residence Halls
Start your Housing Application
We’re Here For You
For information about housing and dining, contact us Monday–Friday, 8 a.m. to 4:30 p.m.
Housing and Residence Life
Campion Hall 100, 901 12th Ave, Seattle, WA 98122